3 Bedrooms, Offers Over £350,000
Elsey Cottage, Birnam, Dunkeld PH8 0BW
313
Features & Description
Property Description
Closing date Thursday 12th February at 12:00
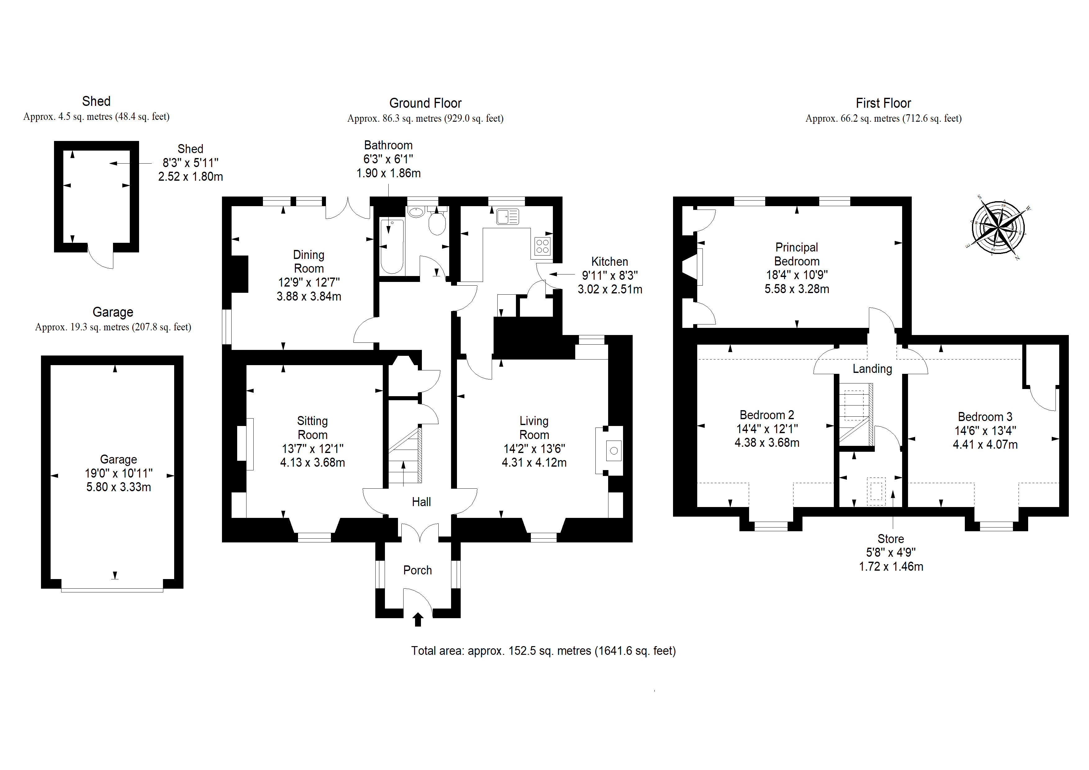
Welcome to Elsey Cottage, a traditional C- listed stone-built detached property which forms part of an exclusive collection of 11 homes set amongst a spectacular backdrop of mature trees and rolling hills. The property offers an idyllic sense of seclusion with a wealth of woodland walks on the doorstep, whilst being a mere 5-minute stroll from Birnam village train station. It is attractively presented throughout, boasting three doubles bedrooms and three reception rooms (two of which could potentially be used as further bedrooms if required). The impressive home is accompanied by generous private parking and a substantial rear garden frequently visited by birds and red squirrels.
Extras: all fitted floor and window coverings, light fittings, and integrated appliances are included.
Read moreKey Features
A large C-listed detached house
Living room with a gas stove
Sitting room with an open fire
Dining room with rear garden access
Fitted kitchen that is well appointed
Three large double bedrooms
3pc bathroom with an overhead shower
A generous store and attic access
Gardens; Driveway; Garage
GCH; Sash Windows; EPC - D
- Council Tax: Band E
- Freehold



















