1 Bedroom, Offers over £120,000
39 Regent Place, West Ferry, Dundee DD5 1AT
111
Features & Description
Property Description
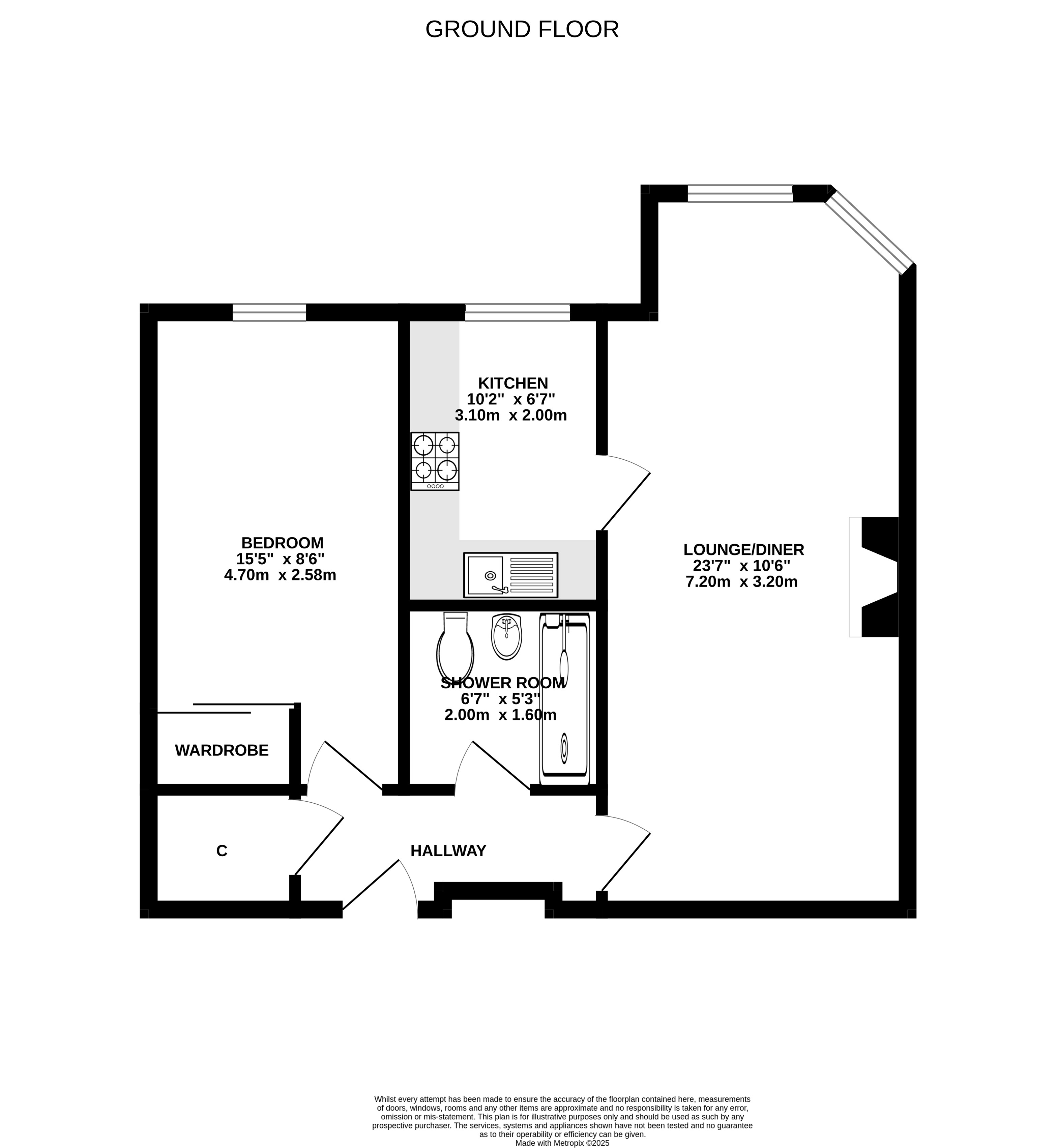
Attractive ground floor apartment located within the popular Regent Place Sheltered Housing Complex, convenient for a wide range of local amenities including shopping facilities, restaurants, cafes and public transport.
The accommodation which benefits from double glazing, electric heating comprises entrance hallway with most accommodation leading off, walk in storage cupboard, bright spacious lounge with bay window providing side facing views over the Tay to Fife beyond, feature fireplace incorporating electric fire, door leading to kitchen, fitted kitchen with both wall mounted and base units, oven, hob, extractor, space for breakfasting table, window, double bedroom with fitted wardrobe, shower room with two piece suite and shower cubicle.
The complex has a warden, age restrictions (60+) and factor fees apply.
There are well maintained communal gardens, car park for residents parking.
Viewing is highly recommended.
Read moreKey Features
Ground Floor Apartment
Popular Residential Area
Convenient For Local Amenities
Hall, Lounge & Kitchen
Double Bedroom, Shower Room
Secure Entry, On Site Warden
Residents Parking, Comm Gardens
Age Restrictions Apply
Double Glazing & Electric CH, EPC C
Viewing highly recommended
- Council Tax: Band C
- Freehold










