2 Bedrooms, Offers over £185,000
Flat E, 25, Shepherds Loan, Dundee DD2 1AW
211
Features & Description
Property Description
Located in a highly convenient position within Dundee City Centre, this well presented top floor apartment is offered to the market and is sure to impress a wide range of buyers. The property is set within a modern development of similar styled homes and within easy walking distance from local shopping, restaurants and public transport links within the city. Both Dundee and Abertay University are also within easy reach.
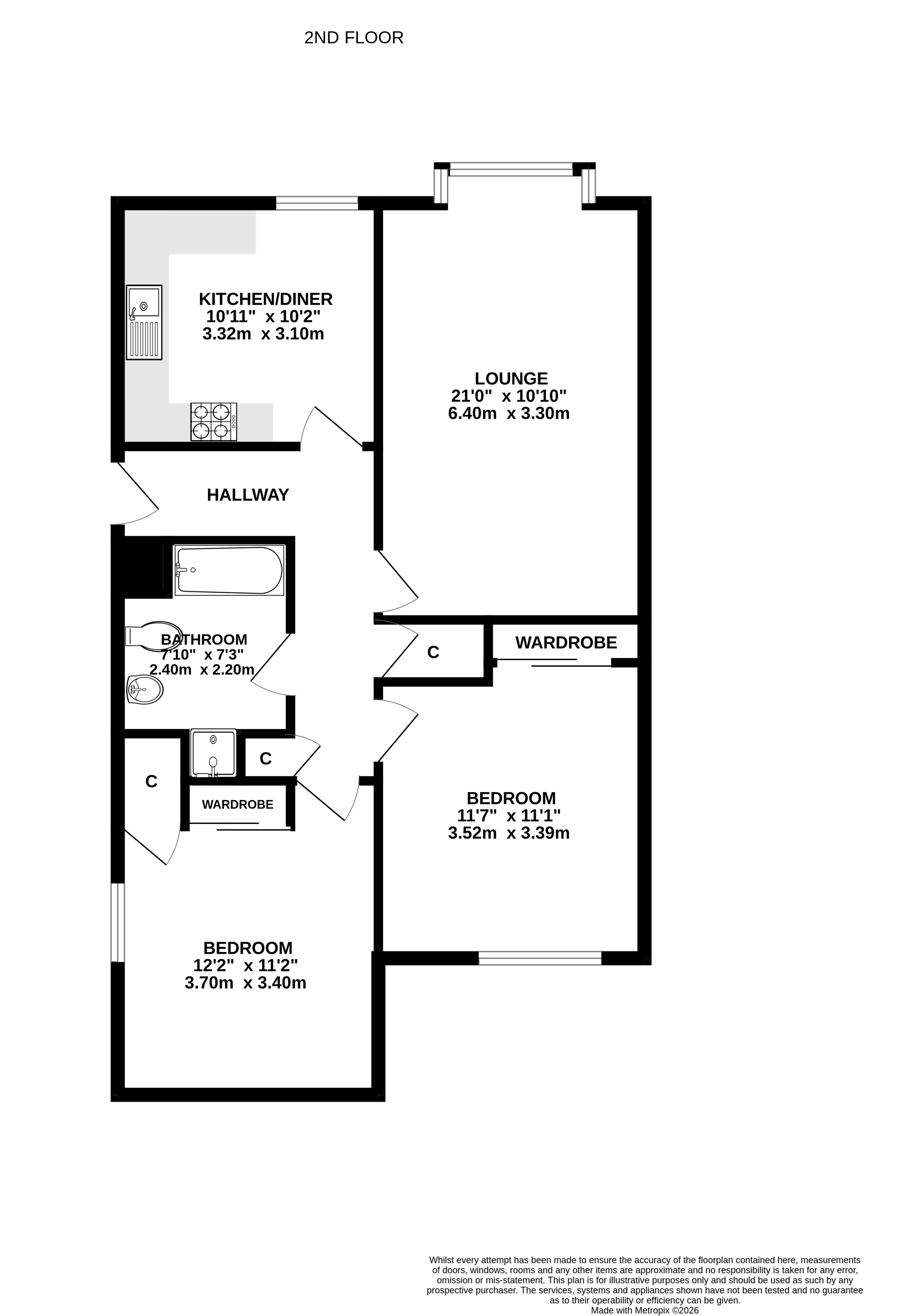
Accessed via a well tended residents hallway with security entry system the apartment offers generous accommodation comprising: entrance hallway with all accommodation leading off, storage cupboards, impressive bright lounge which offers ample space for both occasional furniture and dining table, modern kitchen fitted with a range of wall and base units, oven, hob, extractor, space for breakfasting table, bathroom with three piece suite and separate shower cubicle, two double bedrooms with fitted wardrobes. Practical benefits include gas central heating system and full double glazing.
Externally the property benefits from access to neatly tended garden grounds. There is also private residents parking.
Viewing is highly recommended.
Read moreKey Features
Spacious Top Floor Apartment
Popular Residential Area
Convenient For Local Amenities
Hall
Spacious Lounge/Dining
Fitted Breakfast Kitchen
Two Bedrooms
Bathroom With Separate Shower Cubicle
GCH; DG; EPC - C; Security Entry
Viewing Highly Recommended
- Council Tax: Band D
- Freehold












